ニューライフ北谷 4階
物件の詳細情報
所在地
沖縄県中頭郡北谷町吉原757-4
価格
2,890万円
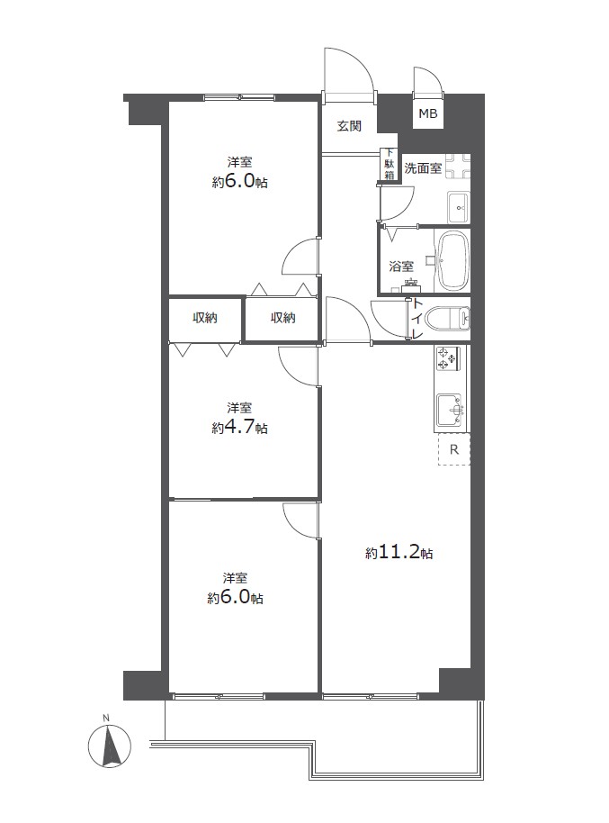
間取り
3LDK
名称
ニューライフ北谷
築年
1992年(34年)
種別
売マンション
地域
中頭郡北谷町吉原
駐車場
1台 : 4,200円
管理費
5,340円
修繕積立金
530円
引渡し
相談
所在階数
4階/10階建
用途地域
第一種中高層住居専用地域
権利
所有権
構造
鉄筋コンクリート(RC)造
管理組合
有
取引形態
専任
管理形態
全部委託
管理会社
沖縄共和管理有限会社
専有面積
約18.02坪(約59.60㎡)
バルコニー
6.05㎡
ペット
不可
交通
てだこ浦西駅から車で28分
団地入口バス停から徒歩5分
団地入口バス停から徒歩5分
校区
北谷小学校まで 徒歩10分
北谷中学校まで 徒歩9分
北谷中学校まで 徒歩9分
設備備考
エレベーター/オートロック
備考
【令和8年6月フルリノベーション工事完了×オーシャンビュー。北谷エリアで叶えるお得な住まい】北谷町吉原に位置する「ニューライフ北谷403号室」。人気の北谷エリアにありながら、価格とのバランスに優れた魅力的な一邸です。本住戸は2026年6月フルリノベーション工事完了で、室内は新築のように美しく生まれ変わり、快適な住空間を実現。キッチンや水回り設備も一新され、気持ちよく新生活をスタートできます。専有面積約59㎡の3LDKは、コンパクトながらも使い勝手の良い間取り。日当たりも良好です。さらにバルコニーからは海を望むオーシャンビューも楽しめ、日常の中にリゾートのような開放感をもたらします。徒歩圏内には小学校や中学校が揃い、子育て世帯にも安心の立地。人気エリア・住環境・リノベーション・価格のバランスが揃った北谷エリアで、新しい暮らしを始めてみませんか。
所在地
沖縄県中頭郡北谷町吉原757-4
地図
https://www.google.com/maps/place/%E3%83%8B%E3%83%A5%E3%83%BC%E3%83%A9%E3%82%A4%E3%83%95%E5%8C%97%E8%B0%B7/@26.3206805,127.7740149,797m/data=!3m1!1e3!4m6!3m5!1s0x34e513000d8dfc0b:0xcb7886bb7b566450!8m2!3d26.3206968!4d127.7767485!16s%2Fg%2F11x5ryrj21?entry=ttu&g_ep=EgoyMDI2MDQwMS4wIKXMDSoASAFQAw%3D%3D

