ミルコマンション曙シーフロントビュー 14階
物件の詳細情報
価格
9,800万円
所在地
沖縄県那覇市曙3-12-9
間取り
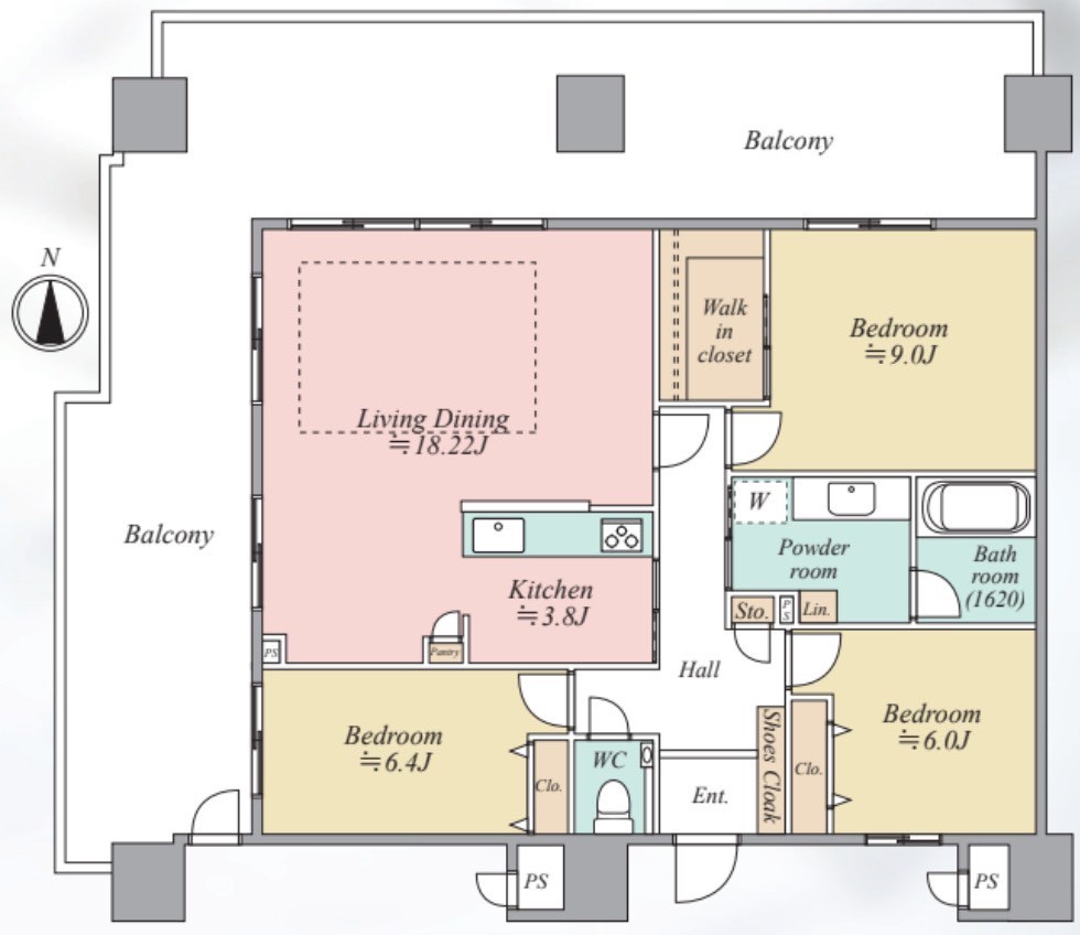
3LDK(洋 9・6.4・6 / LDK 22.02)
名称
ミルコマンション曙シーフロントビュー
築年
2024年(-)
種別
売マンション
地域
沖縄県那覇市曙3丁目
駐車場
1台 : 7,000円
縦列区画( 2 台)駐車できる車種に限りがあります。
縦列区画( 2 台)駐車できる車種に限りがあります。
管理費
15,500円
修繕積立金
7,300円
引渡し
即時可
所在階数
14階/14階建
用途地域
商業地域
権利
所有権
構造
鉄筋(RC造)
管理組合
有
取引形態
仲介
管理形態
全部委託
管理会社
株式会社琉信ハウジング
専有面積
約30.4坪(約100.55㎡)
バルコニー
約18.5坪(約61.2㎡)
交通
古島駅から33分
沖縄シャープ前バス停から2分
沖縄シャープ前バス停から2分
校区
曙小学校まで 徒歩4分
安岡中学校まで 徒歩23分
安岡中学校まで 徒歩23分
設備備考
エレベーター/宅配ボックス
備考
【新築×最上階ペントハウス×オーシャンビュー】贅沢な眺望と広さが叶える、特別な日常。那覇市曙に誕生した「ミルコマンション曙シーフロントビュー」14階、最上階のペントハウス。専有面積100.55㎡に加え、61.20㎡の広大なバルコニーを備えた特別な一邸です。間取りはゆとりある3LDK、リビングは約18帖の広さを確保し、窓の外には視界を遮るもののないオーシャンビューが広がります。朝日から夕暮れまで、海と空の移ろいを贅沢に愉しむ暮らしがここにあります。2024年12月完成の新築未入居物件で、誰も住んだことのない清潔感と安心感も魅力。鉄筋コンクリート造14階建、全50戸のうち最上階という希少性に加え、ウォークインクローゼットやパントリーなど収納も充実。オートロック・エレベーター完備、駐車場も確保可能(月額7,000円)で利便性も申し分ありません。
所在地
沖縄県那覇市曙3-12-9
地図

