沖縄市に新規物件!アレアル4!!
お世話になっております。広告担当です。 新規物件情報のお知らせをさせて頂きます!
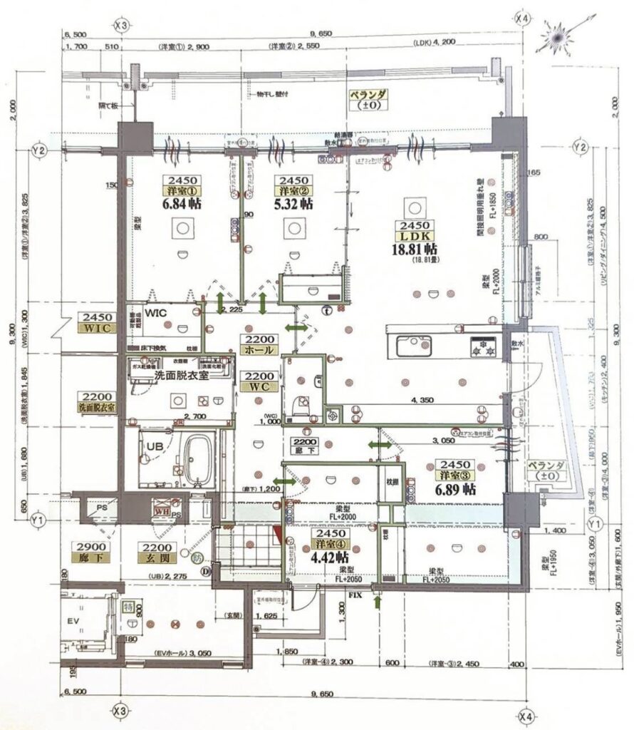
【いつでも内覧可能】 沖縄市にある、4LDKの物件のご紹介します。
98㎡超のゆとりある住空間に加え、4LDK+全室収納完備で家族構成に柔軟対応。
角部屋・4階の中層階で、採光・眺望ともにバランスが取れた快適な住環境。
学校・バス停徒歩圏内で生活利便性が高く、ペットも一緒に暮らせます。
主な特徴
・間取り:4LDK
・階数:6階建て 4階部分
・専有面積:98.15㎡
・築年月:2025/01/01(完成予定)
・駐車場:普通1台無料+2台目先着順 ¥4,500〜
・管理費:12,400円
・修繕積立金:3,500円
・構造:RC(鉄筋コンクリート)造
設備・条件
・キッチン:システムキッチン、対面式キッチン、コンロ3口以上
・バス・トイレ:バス/トイレ別、浴槽、独立洗面所、温水洗浄便座
・建物設備:オートロック、防犯カメラ、TVホン、エレベーター、宅配ボックス、管理人あり、インターネット対応
・その他:角部屋、ウォークインクローゼット、全居室収納、オール洋間、室内洗濯機置き場、ペット可






_260126_49-890x1024.jpg)

